Un moment si doux
Un moment si doux
Un moment si doux
Glasgow, Scotland
Academic
Academic
Academic
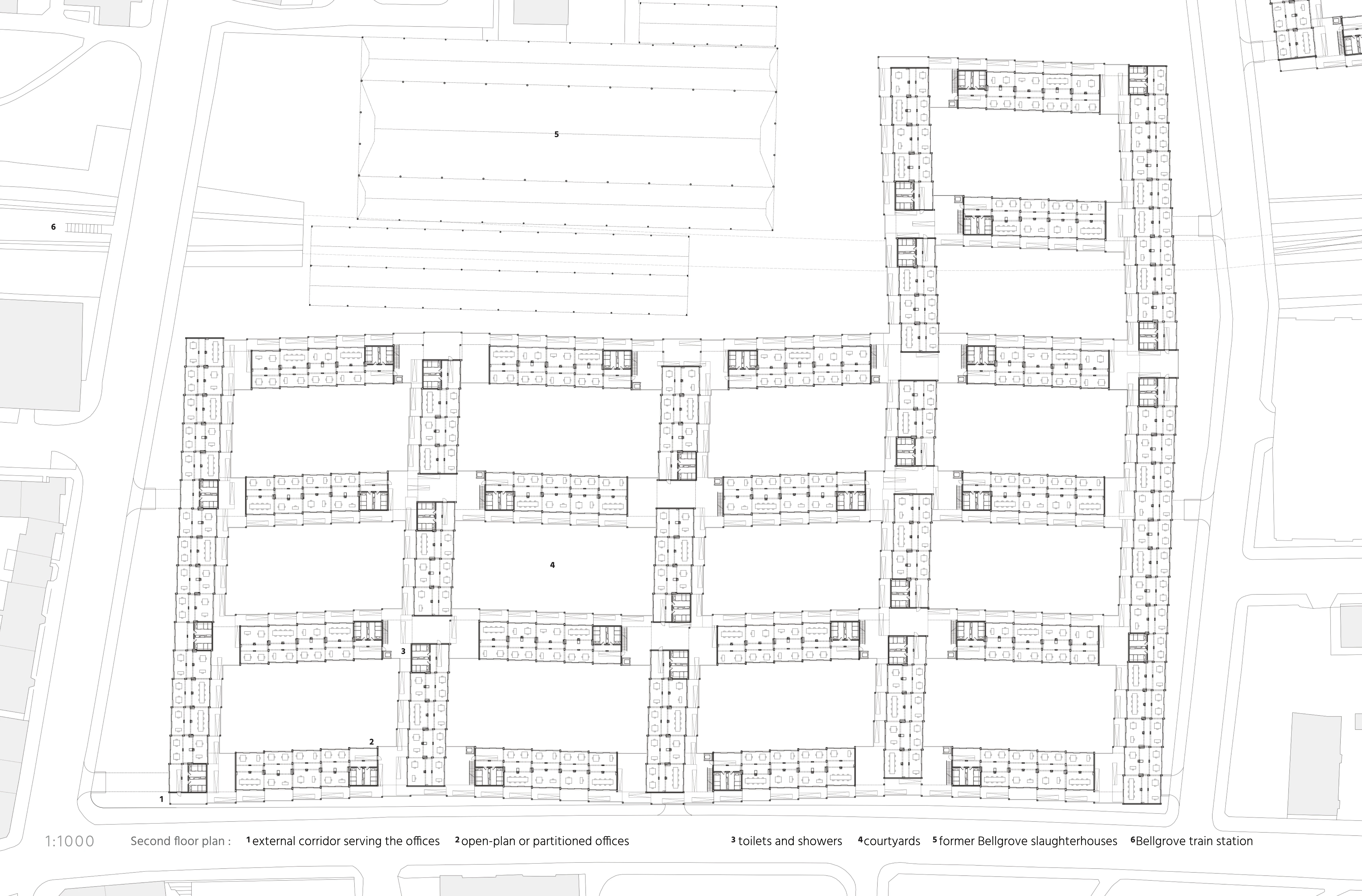
Housing
Housing
City of Glasgow
City of Glasgow
City of Glasgow
2018
2018
2018
81 Bellgrove Sreet
81 Bellgrove Sreet
81 Bellgrove Sreet
G31 1JR Glasgow, Écosse
G31 1JR Glasgow, Écosse
G31 1JR Glasgow, Écosse
Surface du terrain
Surface du terrain
Surface du terrain
70 000 m²
70 000 m²
70 000 m²
Surface de plancher
Surface de plancher
Surface de plancher
87 000 m²
87 000 m²
87 000 m²
Emprise au sol
Emprise au sol
Emprise au sol
24 260 m²
24 260 m²
24 260 m²
Dimensions
Dimensions
400,0 x 300,0 x 12,6 m
400,0 x 300,0 x 12,6 m
400,0 x 300,0 x 12,6 m
FR
/
EN
Notre première rencontre avec Glasgow se fit à travers le regard du photographe Raymond Depardon.
En 2014, son exposition «Un moment si doux» présente pour la première fois ses photographies prises à Glasgow en 1980.
Le photographe ne s’attarde pas seulement sur la décrépitude des logements et le délabrement urbain. Il porte aussi un regard lucide sur le désespoir des travailleurs de la classe moyenne, premières victimes de l’incroyable violence de cette crise. Alors que ses clichés attestent de la fin d’une ère, l’histoire nous rappelle que Glasgow fut capable de prendre un tournant économique et culturel au XXIe siècle en transformant son image de ville industrielle en celle de première ville culturelle du Royaume-Uni.
Afficher plus
FR
/
EN
Notre première rencontre avec Glasgow se fit à travers le regard du photographe Raymond Depardon.
En 2014, son exposition «Un moment si doux» présente pour la première fois ses photographies prises à Glasgow en 1980.
Le photographe ne s’attarde pas seulement sur la décrépitude des logements et le délabrement urbain. Il porte aussi un regard lucide sur le désespoir des travailleurs de la classe moyenne, premières victimes de l’incroyable violence de cette crise. Alors que ses clichés attestent de la fin d’une ère, l’histoire nous rappelle que Glasgow fut capable de prendre un tournant économique et culturel au XXIe siècle en transformant son image de ville industrielle en celle de première ville culturelle du Royaume-Uni.
Afficher plus
FR
/
EN
Notre première rencontre avec Glasgow se fit à travers le regard du photographe Raymond Depardon.
En 2014, son exposition «Un moment si doux» présente pour la première fois ses photographies prises à Glasgow en 1980.
Le photographe ne s’attarde pas seulement sur la décrépitude des logements et le délabrement urbain. Il porte aussi un regard lucide sur le désespoir des travailleurs de la classe moyenne, premières victimes de l’incroyable violence de cette crise. Alors que ses clichés attestent de la fin d’une ère, l’histoire nous rappelle que Glasgow fut capable de prendre un tournant économique et culturel au XXIe siècle en transformant son image de ville industrielle en celle de première ville culturelle du Royaume-Uni.
Afficher plus
More works
More works





















