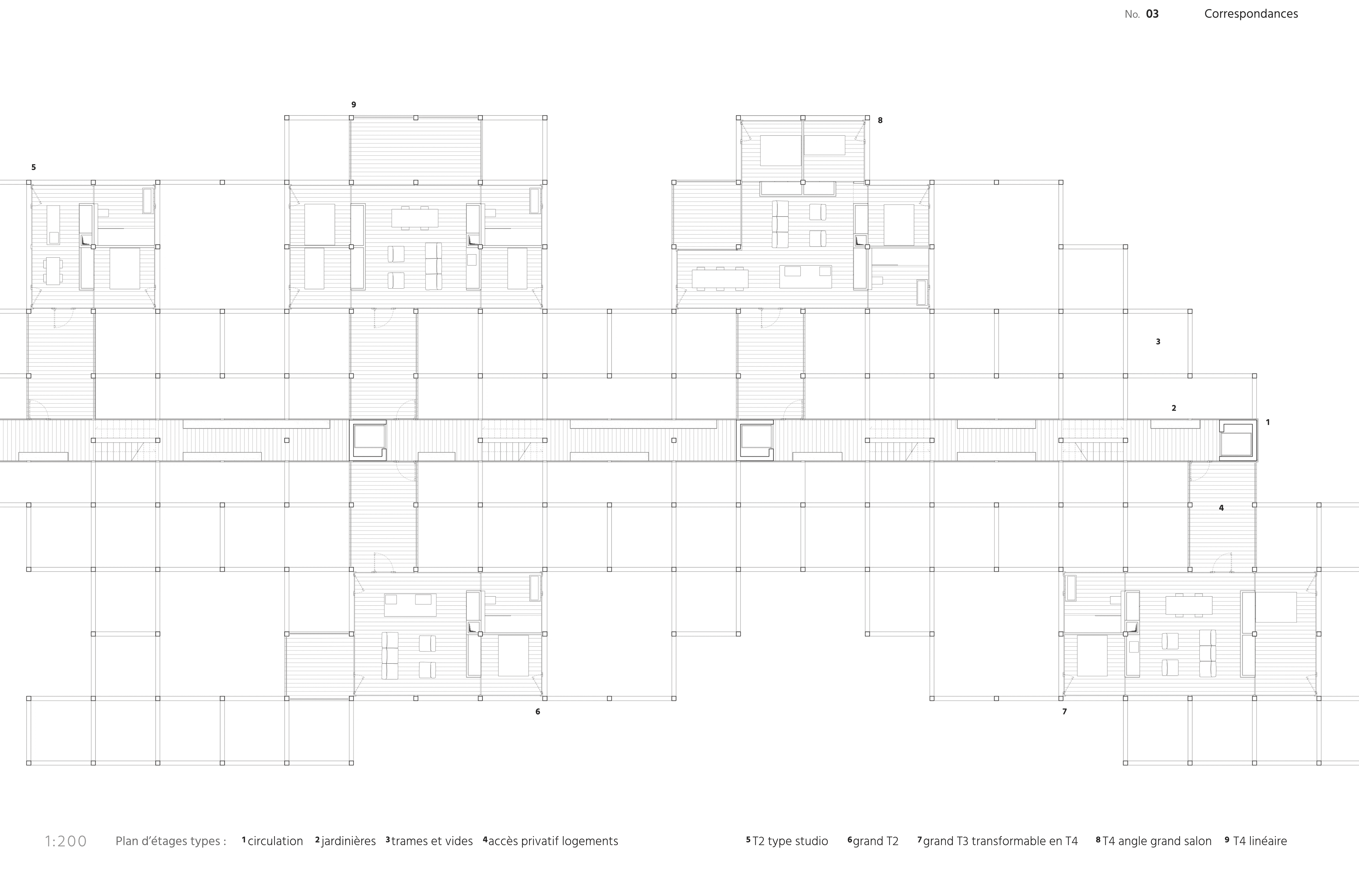
Correspondances
Correspondances
Correspondances
Le Havre, France
Academic
Academic
Academic
Housing
Housing
Le Havre
Le Havre
Le Havre
2018
2018
2018
Route du Môle Central
Route du Môle Central
Route du Môle Central
76600 Le Havre, France
76600 Le Havre, France
76600 Le Havre, France
Surface du terrain
Surface du terrain
Surface du terrain
Variable
Variable
Variable
Surface de plancher
Surface de plancher
Surface de plancher
18 440 m²
18 440 m²
18 440 m²
Emprise au sol
Emprise au sol
Emprise au sol
10 405 m²
10 405 m²
10 405 m²
Dimensions
Dimensions
350,0 x 30,0 x 42,0 m
350,0 x 30,0 x 42,0 m
350,0 x 30,0 x 42,0 m
FR
/
EN
Un « havre » pour les navires de guerre et de commerce. Un lieu de refuge, un abri pour les frégates.
Rapidement, le port du Havre et sa ville dépendirent l’un de l’autre. Lieu stratégique, la ville sera anéantie à la fin de la première guerre mondiale. Et, c’est sur ses cendres que l’architecte Auguste Perret reconstruira un centre-ville moderne en ayant recours à la préfabrication, à l’utilisation systématique d’une trame modulaire et à l’exploitation méthodique du potentiel du béton.
Afficher plus
FR
/
EN
Un « havre » pour les navires de guerre et de commerce. Un lieu de refuge, un abri pour les frégates.
Rapidement, le port du Havre et sa ville dépendirent l’un de l’autre. Lieu stratégique, la ville sera anéantie à la fin de la première guerre mondiale. Et, c’est sur ses cendres que l’architecte Auguste Perret reconstruira un centre-ville moderne en ayant recours à la préfabrication, à l’utilisation systématique d’une trame modulaire et à l’exploitation méthodique du potentiel du béton.
Afficher plus
FR
/
EN
Un « havre » pour les navires de guerre et de commerce. Un lieu de refuge, un abri pour les frégates.
Rapidement, le port du Havre et sa ville dépendirent l’un de l’autre. Lieu stratégique, la ville sera anéantie à la fin de la première guerre mondiale. Et, c’est sur ses cendres que l’architecte Auguste Perret reconstruira un centre-ville moderne en ayant recours à la préfabrication, à l’utilisation systématique d’une trame modulaire et à l’exploitation méthodique du potentiel du béton.
Afficher plus
More works
More works





















