House on a slope
House on a slope
House on a slope
Devon, England
Unbuilt project
Unbuilt project
Unbuilt project
Private residence
Private residence
Private client
Private client
Private client
2021
2021
2021
Moortown, Tavistock
Moortown, Tavistock
Moortown, Tavistock
PL19 9JZ Devon, Royaume-Uni
PL19 9JZ Devon, Royaume-Uni
PL19 9JZ Devon, Royaume-Uni
Surface du terrain
Surface du terrain
Surface du terrain
18 000 m²
18 000 m²
18 000 m²
Surface de plancher
Surface de plancher
Surface de plancher
390 m²
390 m²
390 m²
Emprise au sol
Emprise au sol
Emprise au sol
900 m²
900 m²
900 m²
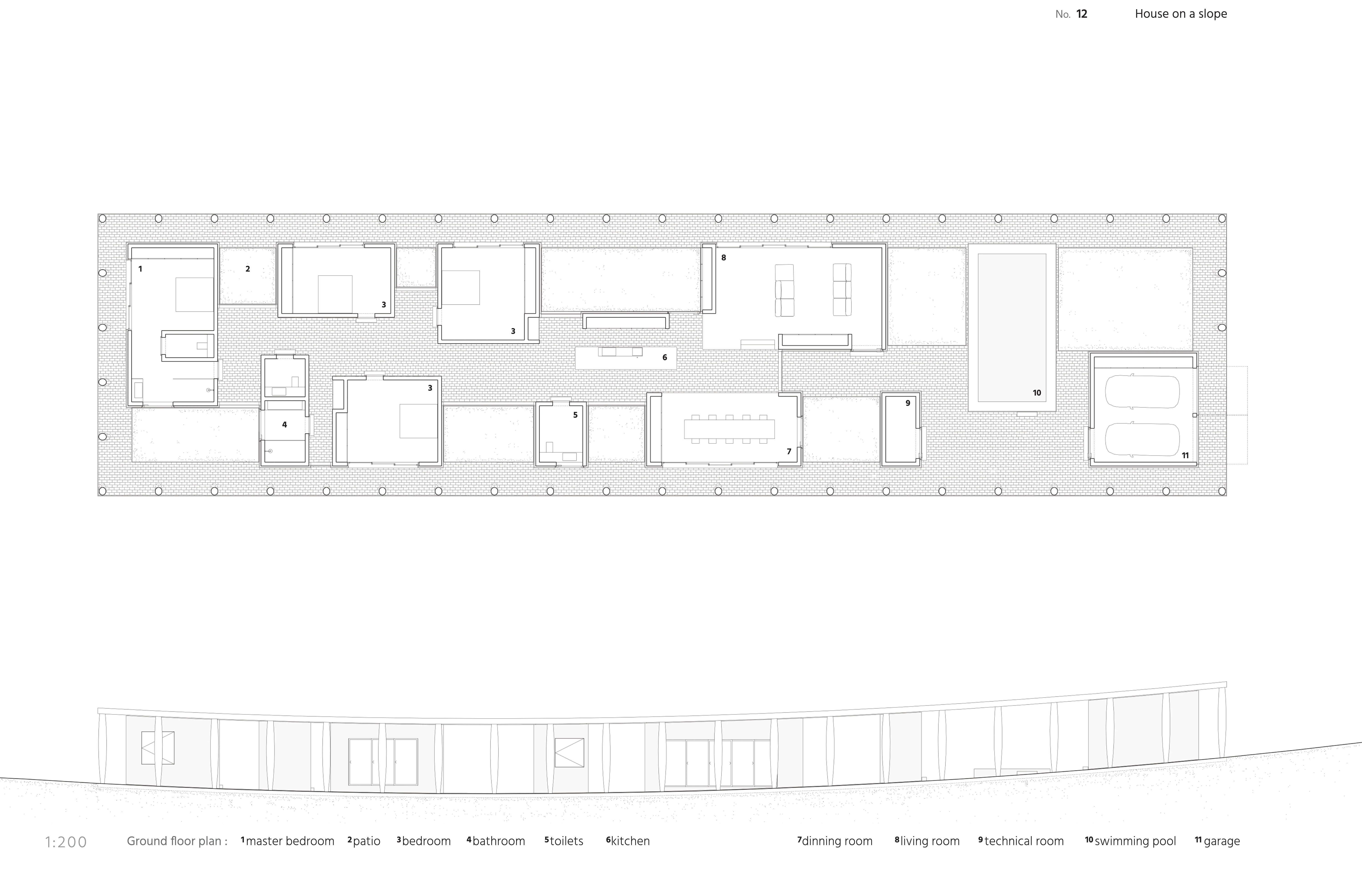
Dimensions
Dimensions
60,0 x 15,0 x 4,0 m
60,0 x 15,0 x 4,0 m
60,0 x 15,0 x 4,0 m
FR
/
EN
Ils se trouvent d’étonnants paysages au nord de Plymouth, dans la Région du centre du Devon, au Royaume-Uni.
Ces terres sauvages sont peuplées de moutons, vaches et poneys en liberté. C’est aussi ici, au Dartmoor, que l’on observe la plus grande concentration de vestiges préhistoriques de la fin du Néolithique au début de l’âge de bronze en Angleterre. Parmi les découvertes des archéologues, une chambre funéraire vieille d’au moins 4000 ans et un cercle de pierre faisant partie d’un « arc sacré» à plus de 525 mètres au dessus du niveau de la mer.
Afficher plus
FR
/
EN
Ils se trouvent d’étonnants paysages au nord de Plymouth, dans la Région du centre du Devon, au Royaume-Uni.
Ces terres sauvages sont peuplées de moutons, vaches et poneys en liberté. C’est aussi ici, au Dartmoor, que l’on observe la plus grande concentration de vestiges préhistoriques de la fin du Néolithique au début de l’âge de bronze en Angleterre. Parmi les découvertes des archéologues, une chambre funéraire vieille d’au moins 4000 ans et un cercle de pierre faisant partie d’un « arc sacré» à plus de 525 mètres au dessus du niveau de la mer.
Afficher plus
FR
/
EN
Ils se trouvent d’étonnants paysages au nord de Plymouth, dans la Région du centre du Devon, au Royaume-Uni.
Ces terres sauvages sont peuplées de moutons, vaches et poneys en liberté. C’est aussi ici, au Dartmoor, que l’on observe la plus grande concentration de vestiges préhistoriques de la fin du Néolithique au début de l’âge de bronze en Angleterre. Parmi les découvertes des archéologues, une chambre funéraire vieille d’au moins 4000 ans et un cercle de pierre faisant partie d’un « arc sacré» à plus de 525 mètres au dessus du niveau de la mer.
Afficher plus
More works
More works


















