Casa em Lisboa
Casa em Lisboa
Casa em Lisboa
Lisbon, Portugal
Unbuilt project
Unbuilt project
Unbuilt project
Private residence
Private residence
Private client
Private client
Private client
2020
2020
2020
12 R. Santos-O-Velho
12 R. Santos-O-Velho
12 R. Santos-O-Velho
1200-656 Lisbonne, Portugal
1200-656 Lisbonne, Portugal
1200-656 Lisbonne, Portugal
Surface du terrain
Surface du terrain
Surface du terrain
95 m²
95 m²
95 m²
Surface de plancher
Surface de plancher
Surface de plancher
180 m²
180 m²
180 m²
Emprise au sol
Emprise au sol
Emprise au sol
95 m²
95 m²
95 m²
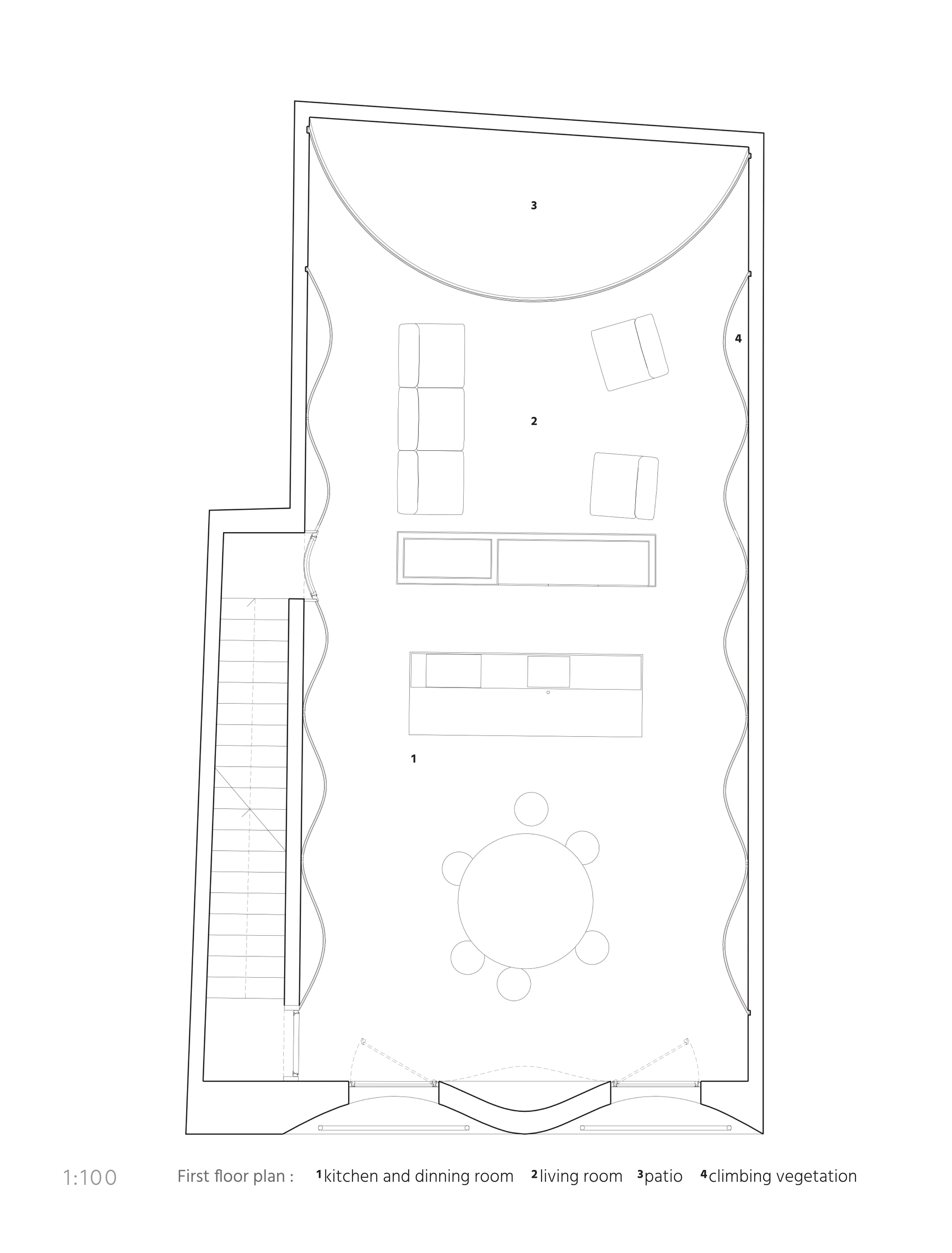
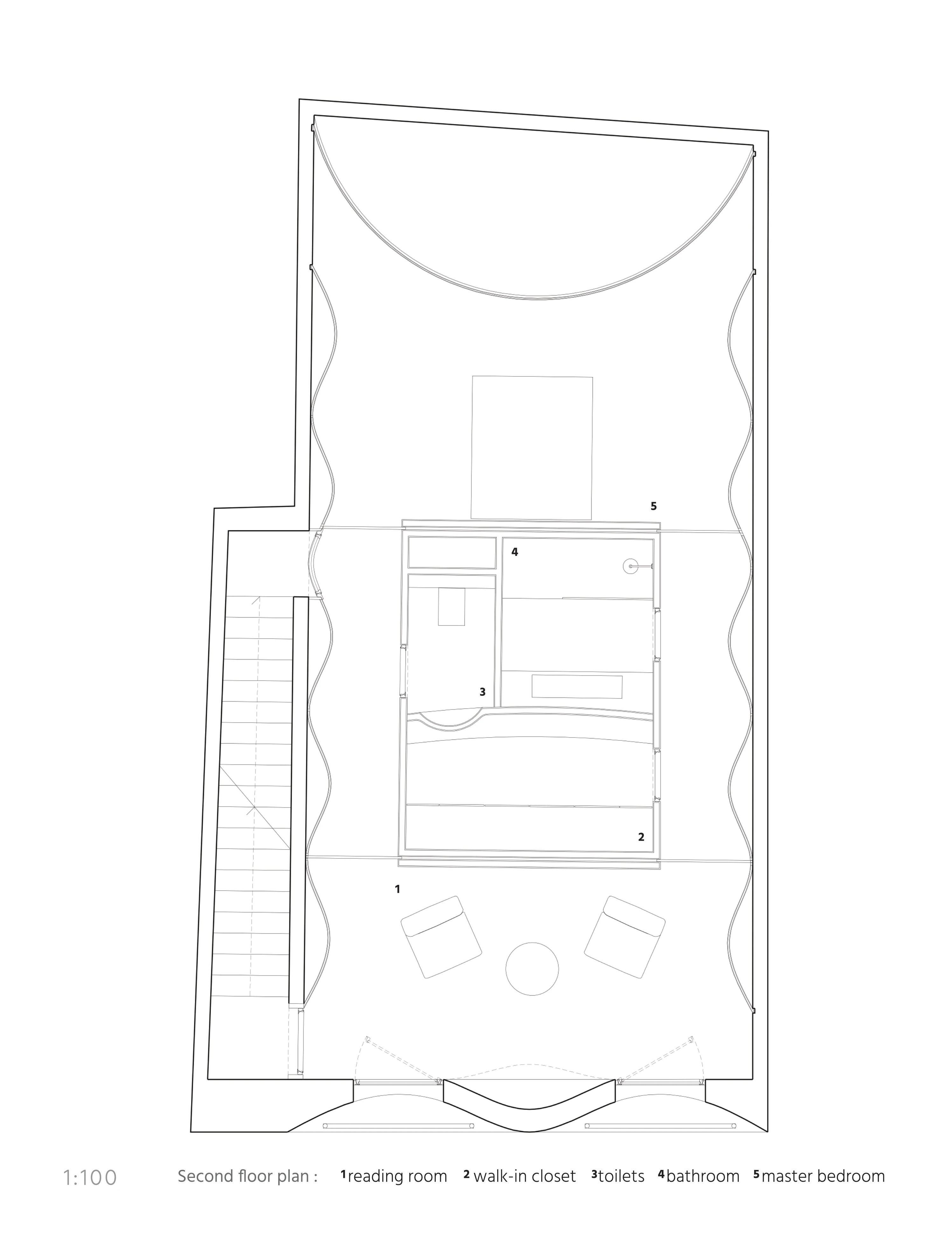
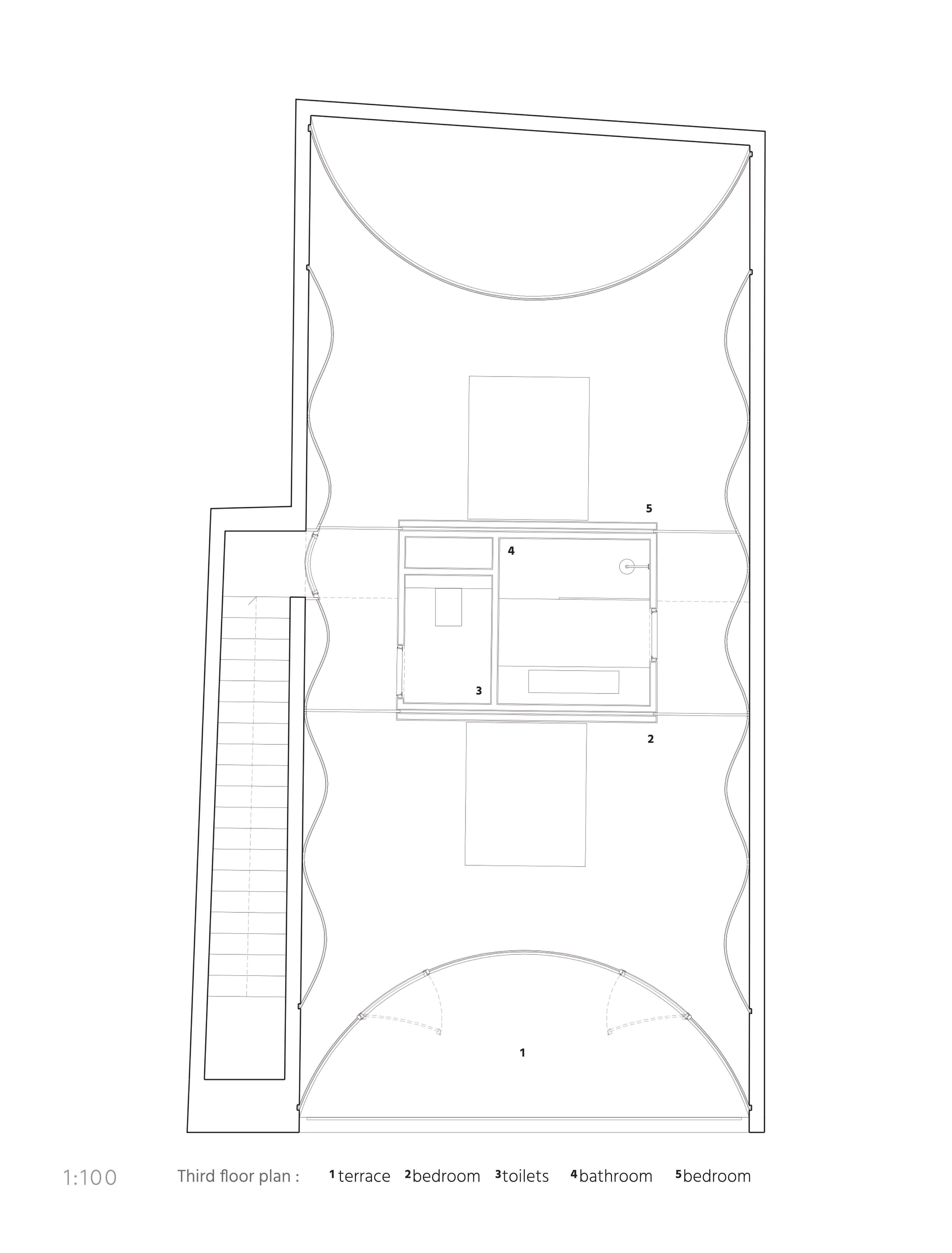
Dimensions
Dimensions
13,7 x 7,4 x 15,0 m
13,7 x 7,4 x 15,0 m
13,7 x 7,4 x 15,0 m
FR
/
EN
Les rues de Lisbonne comptent de nombreux immeubles abîmés par le temps.
Cette « poétique de la ruine » est devenue de plus en plus prononcée depuis que les propriétaires d’immeubles endommagés ont trouvé le moyen de contourner une loi les obligeant à rénover et conserver la façade des bâtiments existants... sauf si leur état de décrépitude est trop important et que toute réhabilitation est inenvisageable.
Afficher plus
FR
/
EN
Les rues de Lisbonne comptent de nombreux immeubles abîmés par le temps.
Cette « poétique de la ruine » est devenue de plus en plus prononcée depuis que les propriétaires d’immeubles endommagés ont trouvé le moyen de contourner une loi les obligeant à rénover et conserver la façade des bâtiments existants... sauf si leur état de décrépitude est trop important et que toute réhabilitation est inenvisageable.
Afficher plus
FR
/
EN
Les rues de Lisbonne comptent de nombreux immeubles abîmés par le temps.
Cette « poétique de la ruine » est devenue de plus en plus prononcée depuis que les propriétaires d’immeubles endommagés ont trouvé le moyen de contourner une loi les obligeant à rénover et conserver la façade des bâtiments existants... sauf si leur état de décrépitude est trop important et que toute réhabilitation est inenvisageable.
Afficher plus
More works
More works



















