Angelus novus
Angelus novus
Angelus novus
Giverny, France
Competition
Competition
Competition
Housing
Housing
Valode & Pistre
Valode & Pistre
Valode & Pistre
2022
2022
2022
41 Chemin du Roy
41 Chemin du Roy
41 Chemin du Roy
27620 Giverny, France
27620 Giverny, France
27620 Giverny, France
Surface du terrain
Surface du terrain
Surface du terrain
135 000 m²
135 000 m²
135 000 m²
Surface de plancher
Surface de plancher
Surface de plancher
4860 m²
4860 m²
4860 m²
Emprise au sol
Emprise au sol
Emprise au sol
1930 m²
1930 m²
1930 m²
Dimensions
Dimensions
Ø 250,0 x 9,2 x 7,5 m
Ø 250,0 x 9,2 x 7,5 m
Ø 250,0 x 9,2 x 7,5 m
FR
/
EN
«Habiter, demain» est un concours d’idées organisé par l’agence Valode & Pistre à la suite du choc de la crise sanitaire du covid.
Ce concours propose à la nouvelle génération d’architecte d’imaginer de nouvelles formes d’habitat collectif répondant de manière innovante à l’inadaptation des logements actuels à leur environnement.
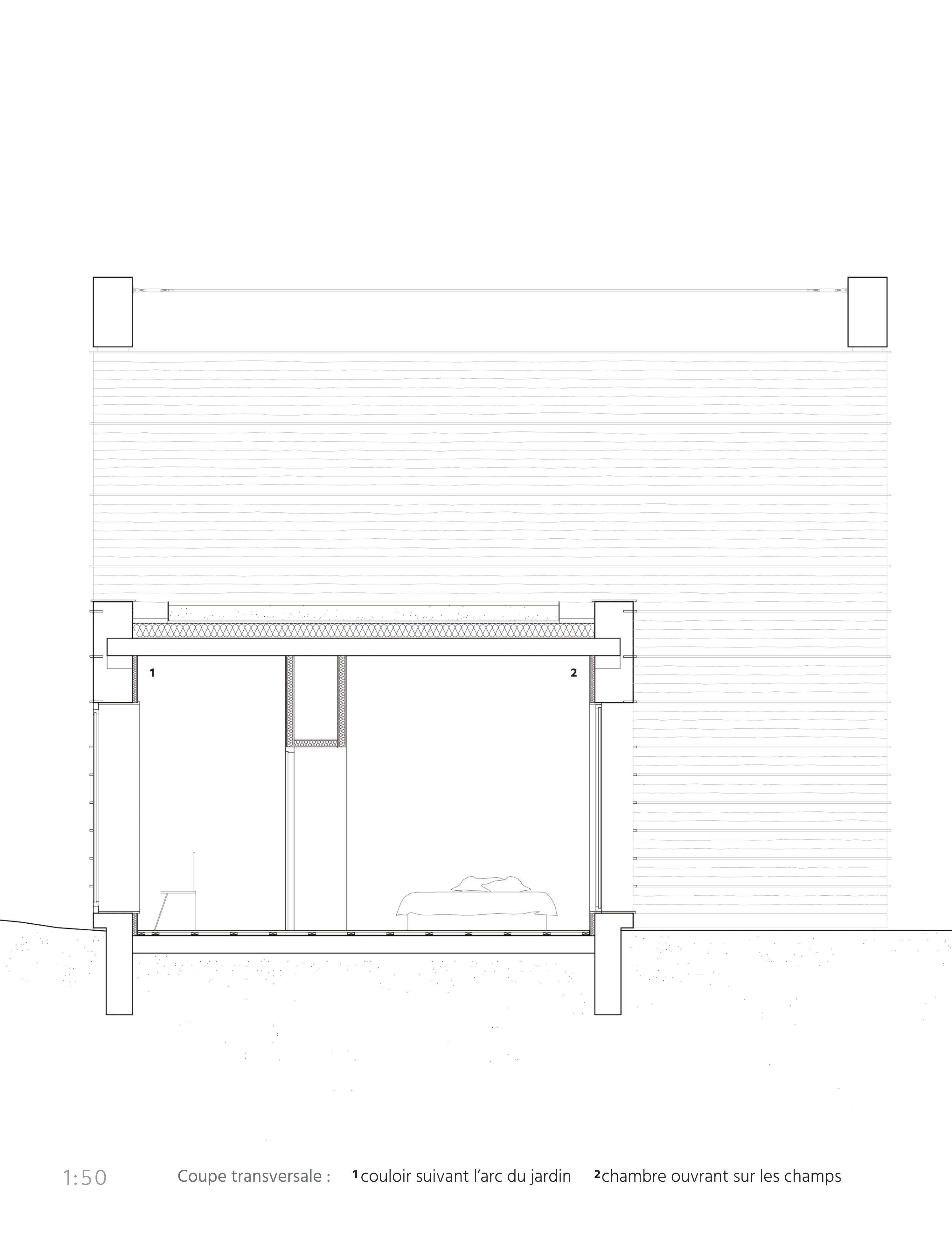
Inspiré par les théories du moine bénédictin et architecte Hans van der Laan, il nous semble que l’habitat collectif de demain devrait prendre la forme d’un grand « espace architectonique qui protège, renferme et ouvre en même temps sur l’horizon ».
Afficher plus
FR
/
EN
«Habiter, demain» est un concours d’idées organisé par l’agence Valode & Pistre à la suite du choc de la crise sanitaire du covid.
Ce concours propose à la nouvelle génération d’architecte d’imaginer de nouvelles formes d’habitat collectif répondant de manière innovante à l’inadaptation des logements actuels à leur environnement.
Inspiré par les théories du moine bénédictin et architecte Hans van der Laan, il nous semble que l’habitat collectif de demain devrait prendre la forme d’un grand « espace architectonique qui protège, renferme et ouvre en même temps sur l’horizon ».
Afficher plus
FR
/
EN
«Habiter, demain» est un concours d’idées organisé par l’agence Valode & Pistre à la suite du choc de la crise sanitaire du covid.
Ce concours propose à la nouvelle génération d’architecte d’imaginer de nouvelles formes d’habitat collectif répondant de manière innovante à l’inadaptation des logements actuels à leur environnement.
Inspiré par les théories du moine bénédictin et architecte Hans van der Laan, il nous semble que l’habitat collectif de demain devrait prendre la forme d’un grand « espace architectonique qui protège, renferme et ouvre en même temps sur l’horizon ».
Afficher plus
More works
More works



















